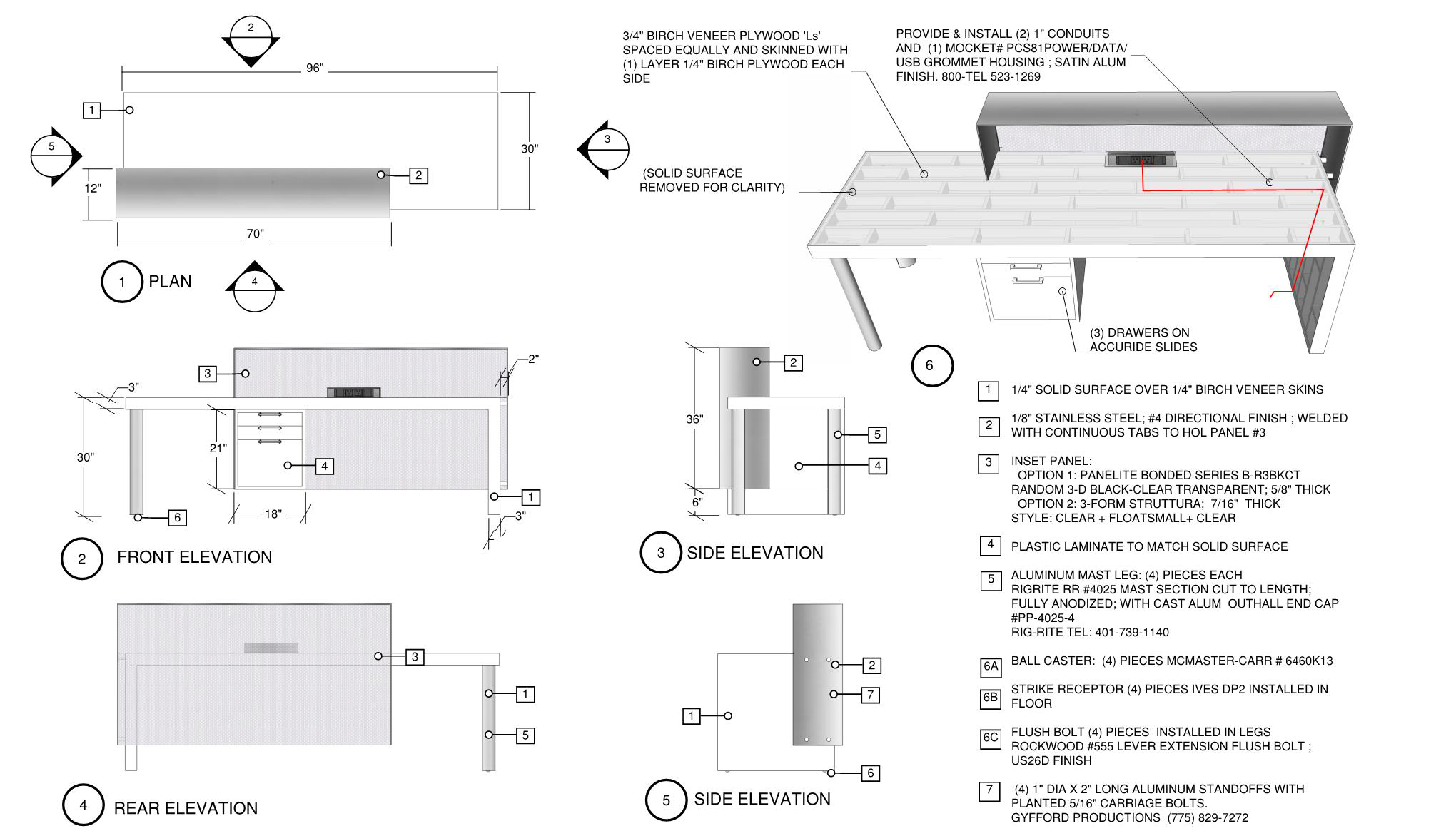
Reception Desk


Materials:

Corian body

Lightben™ PET core with mixed diameter cylindrical cells

stainless steel transaction surface

extruded aluminum legs

ball bearing glides